| NIVEAU | PIÈCE | SURFACE |
Maison 115 m², 5 pièces en vente à Anglet - 830 000 € *
ANGLET (64600)
- 115 m²
- 5 pièce(s)
- 4 chambre(s)
- 183 m²
VIVEZ, VIBREZ
Façon californienne. À la française.
Au cœur du très recherché quartier des Cinq Cantons, une adresse rare s’apprête à voir le jour.
Une résidence confidentielle, sécurisée, pensée comme un domaine privé.
Un lieu où l’architecture contemporaine dialogue avec l’esprit basque.
Un projet haut de gamme dont la livraison est prévue au 4ème trimestre 2027.
Sur 18 villas seulement, 7 sont déjà réservées.
Celle-ci est la dernière disponible de ce modèle.
Ici, il ne s’agit pas simplement d’habiter.
Il s’agit d’adopter un art de vivre.
Le Pays Basque
Un art de vivre entre terre et océan
Entre la majesté des Pyrénées et les rouleaux de l’Atlantique, la Côte Basque déploie une nature généreuse, une culture vibrante et un patrimoine préservé.
Terre d’émotions et de traditions, elle séduit par son identité forte, son excellence gastronomique, sa convivialité et cette douceur de vivre unique.
À Anglet, l’équilibre est parfait.
Avec ses 11 plages, ses 2 golfs, ses kilomètres de pistes cyclables et ses vastes espaces naturels, la ville attire autant les actifs exigeants que les familles et les résidents secondaires en quête d’authenticité sans renoncer au dynamisme.
Les Cinq Cantons incarnent cette dualité :
un cœur commerçant vivant, une atmosphère de village, et l’océan à quelques minutes.
Une adresse stratégique et préservée
À quelques pas des Halles des Cinq Cantons, à proximité immédiate des établissements scolaires réputés, des golfs et des plages, la résidence bénéficie d’un emplacement exceptionnel.
• 5 min à pied des commerces et lignes de bus
• 15 min des centres-villes de Bayonne et Biarritz
• 8 min des autoroutes A63 et A64
• 8 min de l’aéroport
• 12 min des gares
• 3 min à vélo des plages et golfs
• 10 min de la Vélodyssée
Tout est accessible.
Et pourtant, le domaine reste en retrait, protégé, confidentiel.
Un domaine privé et sécurisé
Pensé comme un petit domaine moderne, familial et chic, l’ensemble est entièrement clos et sécurisé.
Accès contrôlé, vidéophone couleur, garages fermés selon villas, domotique intégrée, environnement arboré…
Dans un contexte où la sécurité est devenue un critère déterminant pour les acquéreurs, cette résidence offre ce que recherchent aujourd’hui les clients exigeants :
Sérénité. Contrôle. Intimité.
Un esprit “résidence privée à l’américaine”, avec l’élégance française.
Une architecture de renom
Les villas ont été conçues par des architectes reconnus pour leur maîtrise des volumes et de la lumière.
Les maisons s’inspirent de l’architecture traditionnelle locale tout en intégrant des lignes contemporaines et des ouvertures généreuses.
Chaque villa est tournée vers la lumière et la vie dedans-dehors, grâce à un travail précis sur les orientations, les perspectives et la végétation environnante.
Un intérieur pensé comme une œuvre
Les espaces intérieurs dévoilent une ambiance élégante où matériaux nobles, teintes harmonieuses et finitions soignées s’associent pour créer un cadre de vie raffiné.
La recherche permanente de l’équilibre parfait entre confort, fonctionnalité, design intemporel et atmosphère chaleureuse.
L’intérieur s’épanouit dans une harmonie subtile où chaque détail raconte l’essence d’un art de vivre intemporel.
Beiges lumineux, nuances terracotta, bois clair.
Fibres naturelles, pierre douce, matières brutes.
Ici, la simplicité devient sophistication.
Un souffle plus contemporain traverse également certains espaces :
vert émeraude, gris ardoise, noir graphique, marbre clair et lignes architecturales précises.
Un luxe sans ostentation.
Un raffinement assumé.
Une atmosphère à la fois urbaine, chaleureuse et profondément intemporelle.
Des prestations haut de gamme
• Parquet ou carrelage grand format selon villa
• Volets roulants électriques centralisés
• Bibliothèques, dressings et placards aménagés
• WC suspendus
• Robinetterie haut de gamme
• Bac à douche extra plat avec niche intégrée
• Sèche-serviettes mural
• Domotique complète (éclairage, volets…)
• Menuiseries aluminium double vitrage
• Chauffage et rafraîchissement intégrés
• Douche extérieure
• Terrasses en dalles céramiques ou bois
• Garages fermés et carrelés pour certaines villas
Chaque détail a été pensé pour répondre aux attentes d’une clientèle exigeante, en quête de qualité durable et de valeur patrimoniale.
Une signature paysagère immersive
Le projet paysager recrée une atmosphère de clairière habitée.
Chênes verts, fougères, hortensias, lauriers…
Chaque villa s’intègre dans une composition douce et naturelle.
Le végétal devient une enveloppe protectrice.
Une respiration permanente.
Un luxe discret, profondément apaisant.
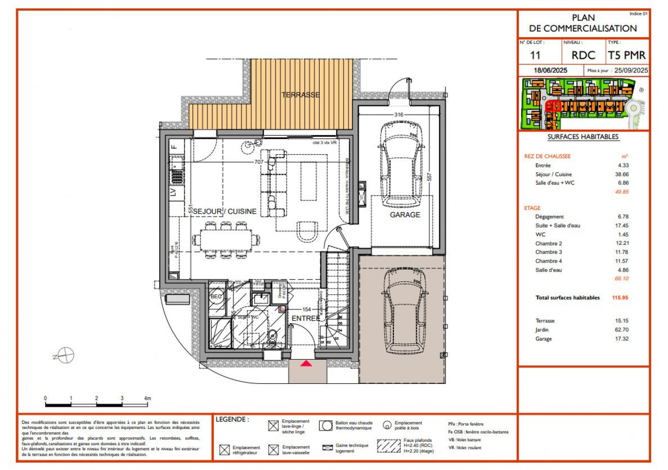
Présentation de la Villa 11
Villa de standing
Surface habitable : 115,71 m²
Terrain : 183 m²
Terrasse : 15,15 m²
Jardin : 62,70 m²
Garage : 17,32 m²
1 carport
Rez-de-chaussée – 49,61 m²
Entrée : 4,24 m²
Séjour / cuisine : 38,66 m²
WC : 1,94 m²
Cellier : 4,77 m²
Étage – 66,10 m²
Dégagement : 6,78 m²
Suite + salle d’eau : 17,45 m²
WC : 1,45 m²
Chambre 2 : 12,21 m²
Chambre 3 : 11,78 m²
Chambre 4 : 11,57 m²
Salle d’eau : 4,86 m²
Une opportunité stratégique
Quartier ultra recherché
Résidence sécurisée et confidentielle
Architecture premium
Livraison 4ème trimestre 2027
Dernière villa disponible de ce modèle
Valorisation patrimoniale forte
Dossier confidentiel sur demande
Plans détaillés
Plan de masse du domaine sécurisé
Visuels HD
Notice descriptive complète
Grille tarifaire
Modalités de réservation
Visite 3D de la résidence et des villas
Présentation vidéo
Brochures commerciales détaillées
Ce projet ne se consulte pas.
Il se découvre.
Et il se réserve.
Contactez-moi directement pour recevoir le dossier confidentiel et organiser une présentation privée.
* Honoraires charge vendeur.
cette annonce à un ami
Veuillez réessayer à nouveau




















